CASA A ESTRENAR EN BARRIO CERRADO SAINT JOSEPH

direccion Saint Joseph Longchamps, Longchamps

volver Volver al listado
left
right
left
right

Venta

USD 200.000

  • Oportunidad
  • Tipo de propiedad Casas
  • ambientes 4 Ambientes
  • toilet 2 baños
  • toilet 1 toilette
  • cama 3 Dormitorios
  • Antiguedad Antigüedad A estrenar

Acerca de la propiedad

CASAA ESTRENAR EN BARRIO CERRADO SAINT JOSEPH
La casa está en construcció para finalizar en marzo de 2027.


La casa cuenta con:
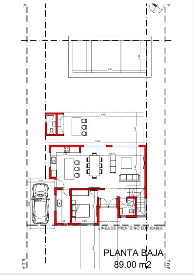
PLANTA BAJA:
Living comedor amplio y luminoso.
Cocina integrada.
1 dormitorio amplio al frente.
Baño completo.
Lavadero independiente.
Galería semicubierta con parrilla y toilette de recepción.
Cochera semicubierta para un vehículo.

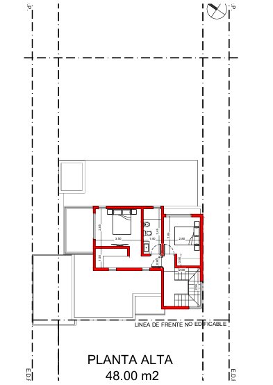
PLANTA ALTA:
2dormitorios, el principal con vestidor y balcón aterrazado.
Baño completo.

Jardín amplio
Espacio para piscina.

Terreno: 450 m2
Superficie Total: 180 m2 
Lote 15x30

-LOS SERVICIOS QUE YA TIENE EL BARRIO SON:
CANCHAS DE TENIS +PISCINA +CANCHA FOOTBALL + PLAZAS Y ESPACIOS VERDES EN COMUN. ADEMAS CUENTA CON VIGILANCIA LAS 24HS + MONITOREO POR VIDEOVIGILANCIA Y CERCOS ELECTRIFICADOS PERIMETRALES.

-YA ESTAN FUNCIONANDO LOS SERVICIOS DE ASFALTO, AGUA, LUZ ELECTRICA, AGUA, CABLE, INTERNET.
ESTAN EN EJECUCION LAS OBRAS DE CLOACAS Y PRÓXIMAMENTE GAS NATURAL.

Se puede financiar !! consultanos.

Comodidades

Ver más

Ubicación

Servicio brindado por

buscadorprop

Todos los derechos registrados:

grupotodo
whatsapp Whatsapp email Contactar telefono Llamar
Chatea con nosotros whatsapp